Používame cookies

Súbory cookie a ďalšie technológie sledovania používame na zlepšenie vášho zážitku z prehliadania našich webových stránok, na to, aby sme vám zobrazovali prispôsobený obsah a cielené reklamy, na analýzu návštevnosti našich webových stránok a na pochopenie toho, odkiaľ naši návštevníci prichádzajú.  Viac info

PRENÁJOM – SKLADOVO – ADMINISTRATÍVNY OBJEKT, BRATISLAVA – VRAKUŇA

Sklady a haly | 861 m2 | novostavba
9,80 €/m2
  • MHD

O nehnuteľnosti

Okres: Bratislava II
Lokalita: Bratislava-Vrakuňa
Celková výmera: 861 m2
Typ: Sklady a haly
Stav: novostavba
Druh: Predaj
Cena: 9,80 €/m2

Popis nehnuteľnosti

PRENÁJOM – SKLADOVO – ADMINISTRATÍVNY OBJEKT, BRATISLAVA – VRAKUŇA
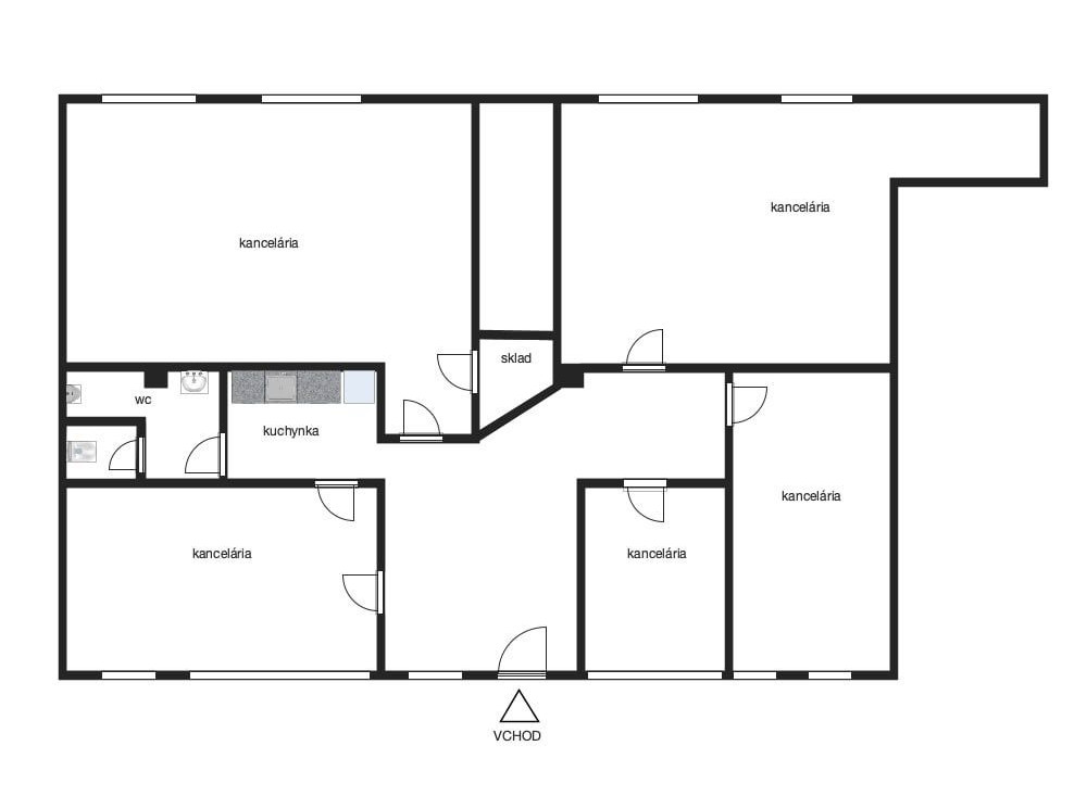
BOND Reality ponúka na prenájom samostatne stojaci skladovo - administratívny objekt s celkovou plochou 861 m², ktorý sa nachádza v uzavretom areáli v mestskej časti Bratislava – Vrakuňa.
Areál je napojený na mestskú komunikáciu a prístupný aj pre kamióny. Pozostáva z dvojpodlažnej administratívnej budovy a jednopodlažného objektu využívaného ako kombinácia kancelárskych a skladových priestorov. Budovy ponúkajú veľmi flexibilné dispozičné riešenie – kombináciu kancelárskych a skladových priestorov s možnosťou úprav podľa potreby. Pri budove je k dispozícii približne 30 vyhradených parkovacích miest určených výhradne pre nájomcu.
ADMINISTRATÍVNE PRIESTORY pozostávajú z recepcie, zasadacej miestnosti, archívu, serverovne, sociálneho zázemia a viacerých samostatných kancelárií. Ide o moderné priestory vybavené klimatizáciou, kompletnou IT infraštruktúrou (štruktúrovaná kabeláž, optické pripojenie, telefónne linky) a ponúkajú flexibilné možnosti dispozičného prispôsobenia podľa potrieb nájomcu.
SKLADOVÉ PRIESTORY o výmere cca 600 m², tvoria vykurovaný sklad a archív s elektrickým pripojením 220 V aj 380 V, sú vhodné pre logistické aj technické prevádzky.
PARKOVANIE – k dispozícii je cca 30 vyhradených parkovacích miest určených výhradne pre nájomcu.
Voľné od: 1. júla 2026
Cena prenájmu:
kancelárske priestory: 10,60 € / m² / mesiac + DPH.
skladové priestory: 9,80 € / m² / mesiac + DPH.

Doplňujúce informácie

Status:
aktívne
Vlastníctvo:
firemné
Stav:
novostavba
Úžitková plocha:
861 m2
Počet podlaží:
2
Balkón:
nie
Energetický certifikát:
B
El. napätie:
230/400V
Kanalizácia:
áno
Terasa:
nie
Vykurovanie:
spoločné

Informatívna úverová kalkulačka

Zaujala Vás naša ponuka? Radi Vám povieme viac

Podobné nehnuteľnosti, ktoré by Vás mohli zaujímať