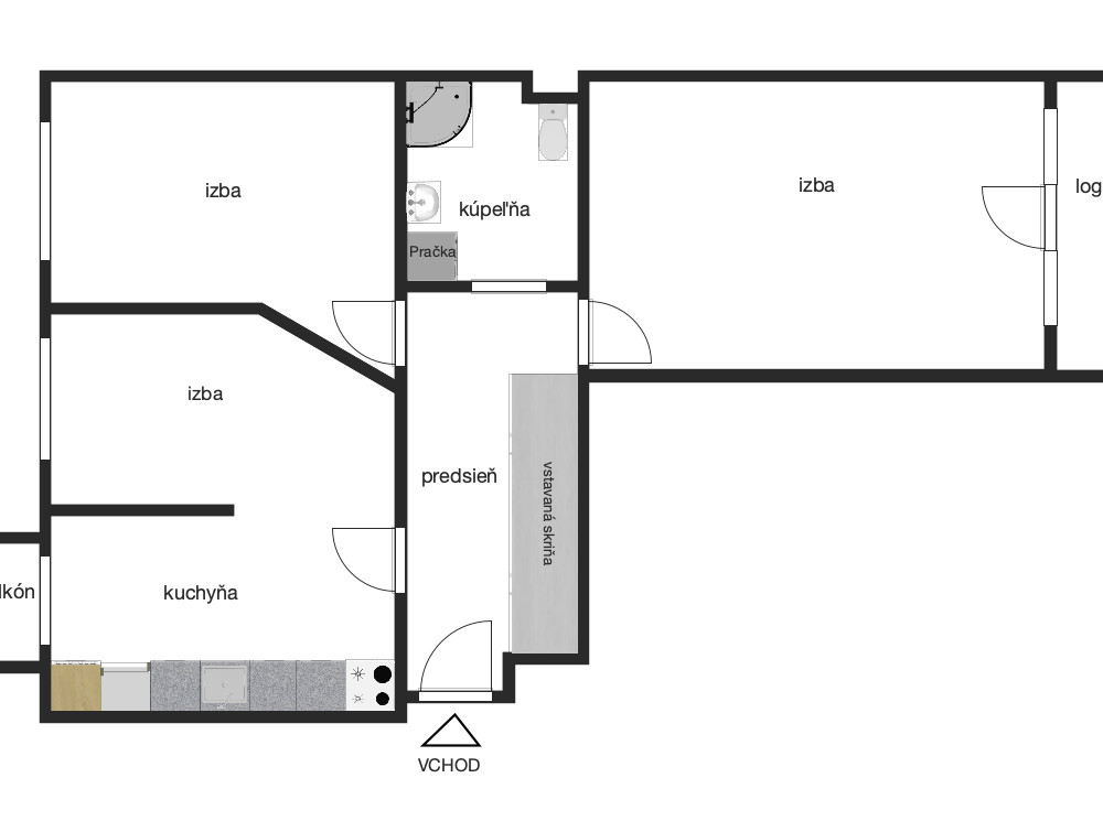
Na predaj krásny samostatne stojací 4-izbový rodinný dom v Lehniciach – Sása
- Rodinný dom
- 158 m2
- novostavba
- Lehnice
- 4
- 1
Mgr. Daniela Rážová
Expertná cenová analýza a správne nastavenie predajnej ceny.
Profesionálne fotografie a Home Staging.
Virtuálna prezentácia nehnuteľností pre okamžitý zážitok.
3D a 2D marketingové pôdorysy.
Reklama a Inzercia na platených pozíciách najväčších realitných portálov.
Fotografie, príbehy a videá na sociálnych sieťach.
Garancia preverenia nehnuteľnosti a najvyššiu možnú právnu ochranu v SR. Zmluvy vypracujú advokáti a notári.
Hypotekárne nastavenie šité na mieru. Financovanie vyriešime za vás.
Odovzdanie nehnuteľnosti a pomoc pri prepise energií.
Pomoc pri odhlásení a prihlásení pre daň z nehnuteľnosti.
Expertná cenová analýza a správne nastavenie predajnej ceny.
Profesionálne fotografie a Home Staging.
Virtuálna prezentácia nehnuteľností pre okamžitý zážitok.
3D a 2D marketingové pôdorysy.
Reklama a Inzercia na platených pozíciách najväčších realitných portálov.
Fotografie, príbehy a videá na sociálnych sieťach.
Garancia preverenia nehnuteľnosti a najvyššiu možnú právnu ochranu v SR. Zmluvy vypracujú advokáti a notári.
Hypotekárne nastavenie šité na mieru. Financovanie vyriešime za vás.
Odovzdanie nehnuteľnosti a pomoc pri prepise energií.
Pomoc pri odhlásení a prihlásení pre daň z nehnuteľnosti.
Plánujete si nehnuteľnosť predať sami bez risku ? Potrebujete kvalitnú zmluvu a podklady? Nemáte čas behať po úradoch či katastroch alebo bankách? Neviete si rady a pohnúť s ťažkým prípadom financovania či právneho stavu? Sme tu pre Vás.
Ste všestranný a znalý ale predsalen cenné rady odborníka by sa zišli ? U nás si môžete vyskladať služby na mieru podľa potreby za skvelú cenu.
Potrebujete potvrdenie o trhovej cene nehnuteľnosti pre potreby dedičského konania, vysporiadania BSM, súdneho sporu a podobne? My vám ho vypracujeme. Odborne, rýchlo, cenovo dostupne.
Bernolákovo, ul. Dukelská
Predaj bytov v projekte Nová Dukelská ponúka ideálnu príležitosť pre tých, ktorí hľadajú kvalitné bývanie v blízkosti Bratislavy s výborným pomerom ceny a veľkosti bytu. Projekt je navrhnutý s ohľadom na komfort, dostupnosť a moderné potreby bývania. Dokončenie projektu LETO 2025.
- premyslené, priestranné dispozície bytov od 1 izbových až po 4 izbové
- výmery interiérov od 40m² až po 116m² ( dôraz na funkčnosť a dostatok úložných priestorov )
- kvalitný štandard vybavenia bytov
- výborná dostupnosť do centra Bernolákova s kompletnou občianskou vybavenosťou a okamžitým napojením na obchvat ( smer Bratislava, Pezinok a Senec )
Bratislava, Vrakuňa
Útulný komplex rodinných viladomov s množstvom zelene, s menším počtom bytových jednotiek, čistou a funkčnou architektúrou je Rezidencia Majerská. Projekt je zložený z 8 samostatných rodinných domov, štyri samostatné rodinné domy a jeden dvojdom. Ide o komplex luxusných viladomov. Výstavba zahájená 03/2024, dokončenie projektu 3Q/2025.
Bratislava, Petržalka
Rezidenčný projekt 4 bytových domov v rozvíjajúcej sa novej zóne na mieste bývalého priemyselného areálu Matador. Revitalizácia ďalšej časti tohto opusteného brownfieldu vytvorí a doplní nový charakter tejto rýchlo sa meniacej lokality Petržalky – Bratislavy. Projekt sa chýli do stavebného dokončenia so zahájením kolaudácie do konca roka 2022.
Bratislava, Vrakuňa
Rezidenčný projekt s architektonicky atraktívnym vizuálom tvorí uzatvorené kondomínium 8 domov, situovaný v stabilizovanom území rodinných domov v susedstve Vrakúnskeho lesoparku a zároveň s dobrou dopravnou dostupnosťou a blízkosťou do centra mesta.
Dunajský Klátov
Rezidenčný projekt samostatne stojacich 3-4 izbových rodinných domov v malebnom prostredí dunajských ramien a vodných mlynov pri tzv. Klátovskom ramene poskytuje kľud vidieka, dobrú dostupnosť a viac než výbornú cenu pre samostatné bývanie s dokončením na kľúč. Dunajský Klátov je obec vzdialená 8km od Dunajskej Stredy, kde sa nachádza kompletná občianska vybavenosť.
Bratislava, Nové Mesto
Lofty Kominárska vznikajú rekonštrukciou budovy kníhtlačiarne Svornosť z polovice 20. storočia. Vzdušné bývanie v otvorených priestoroch s výnimočne vysokými stropmi sa predstavuje ako nový typ mestského bývania vo vysokom štandarde. Projekt ponúkne pre lofty typické industriálne detaily, priestorovú veľkorysosť, svetlosť a výšku, ale v prvom rade unikátny koncept bývania ako životný štýl.
Bernolákovo, ul. Dukelská
Predaj bytov v projekte Nová Dukelská ponúka ideálnu príležitosť pre tých, ktorí hľadajú kvalitné bývanie v blízkosti Bratislavy s výborným pomerom ceny a veľkosti bytu. Projekt je navrhnutý s ohľadom na komfort, dostupnosť a moderné potreby bývania. Dokončenie projektu LETO 2025.
- premyslené, priestranné dispozície bytov od 1 izbových až po 4 izbové
- výmery interiérov od 40m² až po 116m² ( dôraz na funkčnosť a dostatok úložných priestorov )
- kvalitný štandard vybavenia bytov
- výborná dostupnosť do centra Bernolákova s kompletnou občianskou vybavenosťou a okamžitým napojením na obchvat ( smer Bratislava, Pezinok a Senec )
Bratislava, Vrakuňa
Útulný komplex rodinných viladomov s množstvom zelene, s menším počtom bytových jednotiek, čistou a funkčnou architektúrou je Rezidencia Majerská. Projekt je zložený z 8 samostatných rodinných domov, štyri samostatné rodinné domy a jeden dvojdom. Ide o komplex luxusných viladomov. Výstavba zahájená 03/2024, dokončenie projektu 3Q/2025.
Bratislava, Petržalka
Rezidenčný projekt 4 bytových domov v rozvíjajúcej sa novej zóne na mieste bývalého priemyselného areálu Matador. Revitalizácia ďalšej časti tohto opusteného brownfieldu vytvorí a doplní nový charakter tejto rýchlo sa meniacej lokality Petržalky – Bratislavy. Projekt sa chýli do stavebného dokončenia so zahájením kolaudácie do konca roka 2022.
Bratislava, Vrakuňa
Rezidenčný projekt s architektonicky atraktívnym vizuálom tvorí uzatvorené kondomínium 8 domov, situovaný v stabilizovanom území rodinných domov v susedstve Vrakúnskeho lesoparku a zároveň s dobrou dopravnou dostupnosťou a blízkosťou do centra mesta.
Dunajský Klátov
Rezidenčný projekt samostatne stojacich 3-4 izbových rodinných domov v malebnom prostredí dunajských ramien a vodných mlynov pri tzv. Klátovskom ramene poskytuje kľud vidieka, dobrú dostupnosť a viac než výbornú cenu pre samostatné bývanie s dokončením na kľúč. Dunajský Klátov je obec vzdialená 8km od Dunajskej Stredy, kde sa nachádza kompletná občianska vybavenosť.
Bratislava, Nové Mesto
Lofty Kominárska vznikajú rekonštrukciou budovy kníhtlačiarne Svornosť z polovice 20. storočia. Vzdušné bývanie v otvorených priestoroch s výnimočne vysokými stropmi sa predstavuje ako nový typ mestského bývania vo vysokom štandarde. Projekt ponúkne pre lofty typické industriálne detaily, priestorovú veľkorysosť, svetlosť a výšku, ale v prvom rade unikátny koncept bývania ako životný štýl.
Galéria
Žijeme a dýchame pre realitný obchod.