Používame cookies

Súbory cookie a ďalšie technológie sledovania používame na zlepšenie vášho zážitku z prehliadania našich webových stránok, na to, aby sme vám zobrazovali prispôsobený obsah a cielené reklamy, na analýzu návštevnosti našich webových stránok a na pochopenie toho, odkiaľ naši návštevníci prichádzajú.  Viac info

PREDAJ OBCHODNO-ADMINISTRATÍVNEHO PRIESTORU V NOVOSTAVBE, BALTSKÁ UL.

Obchodné objekty | 146 m2 | novostavba
Baltská, Bratislava-Podunajské Biskupice
248 200 €

O nehnuteľnosti

Ulica: Baltská
Okres: Bratislava II
Lokalita: Bratislava-Podunajské Biskupice
Celková výmera: 146 m2
Typ: Obchodné objekty
Stav: novostavba
Druh: Predaj
Cena: 248 200 €

Popis nehnuteľnosti

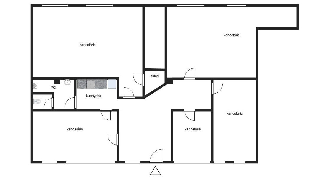
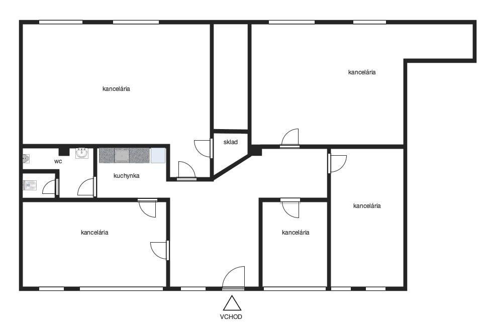
BOND Reality Vám ponúka na predaj obchodno-administratívny priestor o výmere 146 m², ktorý sa nachádza na prízemí bytového domu v lokalite Podunajských Biskupíc na Baltskej ulici. Má priamy vstup z ulice, veľké presklené okná orientované do ulice a je vybavený alarmom a klimatizáciou.
Priestor je aktuálne rozdelený sadrokartónovými priečkami na päť samostatných kancelárií, halu, kuchynku a dve WC. Je tu možnosť vytvoriť veľký otvorený celok – predajný showroom, alebo priestor variabilne upraviť podľa potrieb. Rovnako je možnosť rozšírenia o vedľajší obchodný priestor (64 m²) a vytvorenia jedného celku o celkovej výmere 210 m².
Priestor bol doteraz využívaný ako kancelárie, na liste vlastníctva je evidovaný ako zariadenie obchodu. Je vhodný na obchodné a administratívne účely. Nehnuteľnosť sa nachádza v modernom rezidenčnom komplexe s komfortným parkovaním priamo pred bytovým domom alebo vo vnútrobloku.
Cena: 248 200 €

Doplňujúce informácie

Status:
aktívne
Vlastníctvo:
osobné
Stav:
novostavba
Celková plocha:
146 m2
Úžitková plocha:
146 m2
Počet izieb:
5
Balkón:
nie
Energetický certifikát:
B
El. napätie:
230V
Voda:
verejný vodovod
Kanalizácia:
áno
Materiál:
tehla
Zateplený objekt:
nie
Terasa:
nie
Vykurovanie:
spoločné

Informatívna úverová kalkulačka

IDEÁLNE
MIESTO
NA ŽIVOT

Zaujala Vás naša ponuka? Radi Vám povieme viac

Podobné nehnuteľnosti, ktoré by Vás mohli zaujímať