Používame cookies

Súbory cookie a ďalšie technológie sledovania používame na zlepšenie vášho zážitku z prehliadania našich webových stránok, na to, aby sme vám zobrazovali prispôsobený obsah a cielené reklamy, na analýzu návštevnosti našich webových stránok a na pochopenie toho, odkiaľ naši návštevníci prichádzajú.  Viac info

PREDAJ OBCHODNÉHO PRIESTORU V NOVOSTAVBE, RUŽINOV – HRACHOVÁ UL.

Obchodné objekty | 300 m2 | novostavba
Hrachová, Bratislava-Ružinov
599 900 €
  • MHD

O nehnuteľnosti

Ulica: Hrachová
Okres: Bratislava II
Lokalita: Bratislava-Ružinov
Celková výmera: 300 m2
Typ: Obchodné objekty
Stav: novostavba
Druh: Predaj
Cena: 599 900 €

Popis nehnuteľnosti

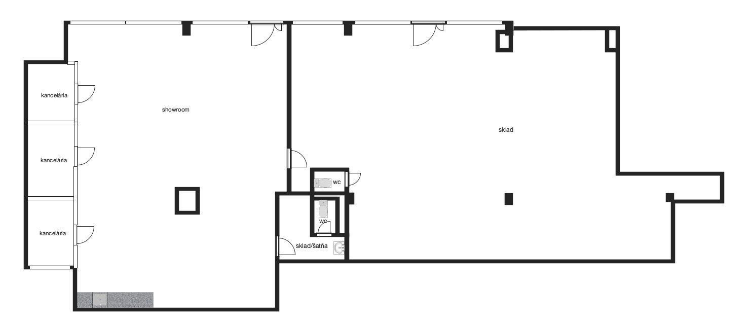
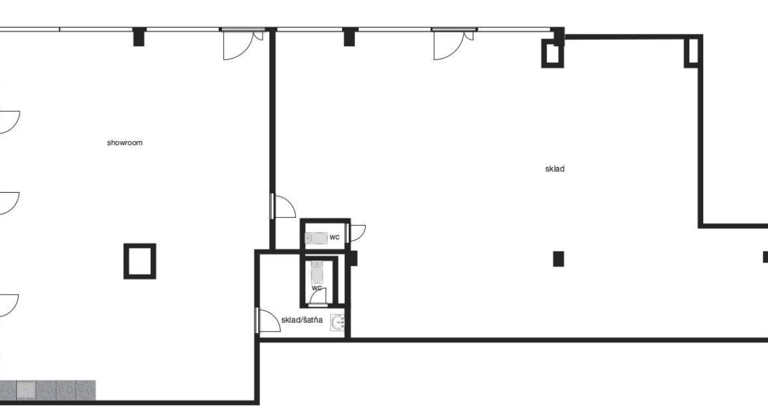
BOND Reality Vám ponúka na predaj obchodno-administratívny priestor o rozlohe 300 m², ktorý sa nachádza na prízemí polyfunkčného objektu v lokalite Ružinov – Prievoz, Hrachová ul. Priestor je pravidelného obdĺžnikového tvaru (cca 26 × 12 m), zo strany ulice má veľké presklené výklady, dva vstupy a je vybavený vzduchotechnikou-rekuperáciou, klimatizáciou a alarmom.
Pôvodný priestor ako celok je aktuálne sadrokartónovými priečkami rozdelený na dve časti. Prvá časť pozostáva z obchodného showroomu a kancelárskych priestorov so sociálnym zázemím. Druhá časť je aktuálne využívaná ako skladový priestor, predtým bola využívaná ako školiace centrum. Obe časti sú vzájomne interiérovo prepojené, resp. každá má samostatný exteriérový vstup.
Priestor je ako celok úplne otvorený (všetky priečky sú nenosné), čo ponúka veľmi flexibilné dispozičné riešenie – kombináciu obchodných, kancelárskych a skladových priestorov s možnosťou úprav podľa potreby, prípadne aj rozdelenie na dva samostatné objekty.
Nehnuteľnosť sa nachádza v modernom rezidenčnom komplexe v uzavretom, stráženom areáli s polyfunkčnými prevádzkami na prízemí. Komfortné parkovanie v rámci uzatvoreného priestoru s riadeným prechodom cez rampu.
Cena: 599 900 €.

Doplňujúce informácie

Status:
aktívne
Vlastníctvo:
firemné
Stav:
novostavba
Úžitková plocha:
300 m2
Balkón:
nie
Energetický certifikát:
B
Terasa:
nie
Vykurovanie:
spoločné

Informatívna úverová kalkulačka

IDEÁLNE
MIESTO
NA ŽIVOT

Zaujala Vás naša ponuka? Radi Vám povieme viac

Podobné nehnuteľnosti, ktoré by Vás mohli zaujímať