Používame cookies

Súbory cookie a ďalšie technológie sledovania používame na zlepšenie vášho zážitku z prehliadania našich webových stránok, na to, aby sme vám zobrazovali prispôsobený obsah a cielené reklamy, na analýzu návštevnosti našich webových stránok a na pochopenie toho, odkiaľ naši návštevníci prichádzajú.  Viac info

Predaj priestoru v Starom Meste, Mickewiczova ul.

231 m2 | čiastočne prerobený
Mickiewiczova, Bratislava-Staré Mesto
619 000 €

O nehnuteľnosti

Ulica: Mickiewiczova
Okres: Bratislava I
Lokalita: Bratislava-Staré Mesto
Celková výmera: 231 m2
Stav: čiastočne prerobený
Druh: Predaj
Cena: 619 000 €

Popis nehnuteľnosti

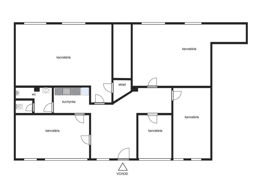
Ponúkame na predaj nebytový priestor na Mickiewiczovej ul. v blízkosti Amerického námestia a Fakultnej nemocnice.
Priestor s výmerou 231 m2 sa nachádza v 18-ročnej novostavbe so vstupom aj výkladom priamo z ulice.
Pozostáva z jednej priestrannej časti so vstupom z ulice a ďalších priestorov pozostávajúcich zo štyroch miestností, dvoch skladov, šatne, WC a terasy.
Priestor má vlastné vykurovanie s prípravou teplej vody, je vybavený PC rozvodmi, klimatizáciou, alarmom.
V cene priestoru je aj jedno parkovacie státie v podzemnej garáži.
Je vhodný na prevádzku zdravotníckeho zariadenia, napr. ambulancií, lekárne, sociálnej starostlivosti...
Konkrétny prehľad priestorov je k dispozícii na videu:
https://my.matterport.com/show/?m=YnesaVdSRWL

Cena priestoru je 619.000,- EUR vrátane právneho servisu.

Doplňujúce informácie

Status:
aktívne
Stav:
čiastočne prerobený
Úžitková plocha:
231 m2
Balkón:
nie
Terasa:
nie
Vykurovanie:
spoločné

Informatívna úverová kalkulačka

IDEÁLNE
MIESTO
NA ŽIVOT

Zaujala Vás naša ponuka? Radi Vám povieme viac

Podobné nehnuteľnosti, ktoré by Vás mohli zaujímať