
About real estate
Street: | Baltská |
---|---|
District: | Bratislava II |
Location: | Bratislava-Podunajské Biskupice |
Total area: | 210 m2 |
---|---|
Type: | Other |
Condition: | new Building |
Category: | Sale |
---|---|
Price: | 350 000 € |
Property description
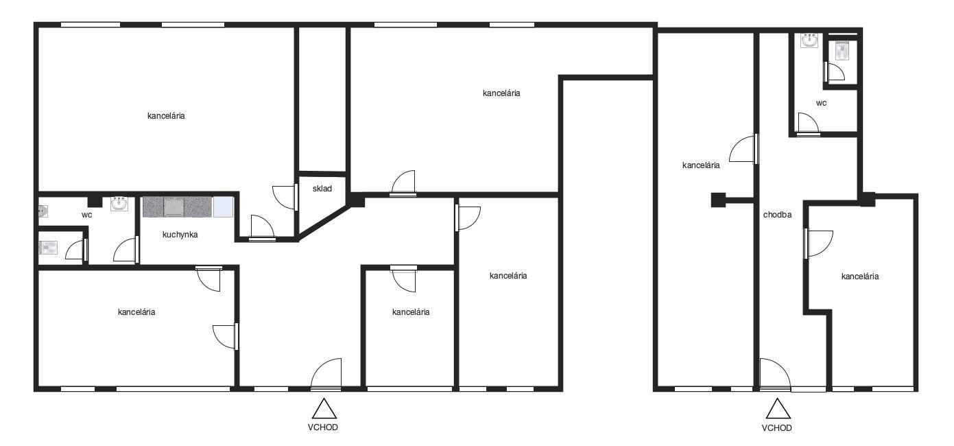
Priestor je v súčasnosti rozdelený na dva samostatné celky (146 m² a 64 m²), každý so samostatným vstupom. Dispozične pozostáva z viacerých miestností oddelených sadrokartónovými priečkami – kancelárií, sociálneho zázemia a toaliet. V prípade potreby je možné priestor upraviť na veľký otvorený showroom alebo ho variabilne prispôsobiť podľa vlastných požiadaviek.
Priestor má dva priame vstupy z ulice a veľké presklené výklady, ktoré zabezpečujú výbornú viditeľnosť a prirodzené presvetlenie. Je vybavený klimatizáciou a zabezpečovacím systémom.
Na liste vlastníctva je vedený ako zariadenie obchodu a je vhodný na obchodné alebo administratívne účely.
Nehnuteľnosť sa nachádza v novostavbe s rezidenčným charakterom a ponúka pohodlné parkovanie priamo pred domom alebo vo vnútrobloku.
Cena: 350 000 €