Používame cookies

Súbory cookie a ďalšie technológie sledovania používame na zlepšenie vášho zážitku z prehliadania našich webových stránok, na to, aby sme vám zobrazovali prispôsobený obsah a cielené reklamy, na analýzu návštevnosti našich webových stránok a na pochopenie toho, odkiaľ naši návštevníci prichádzajú.  Viac info

5 izbový RD s krásnym výhľadom na Rakúsko, OREŠIANKY, Tepelné čerpadlo

Rodinný dom | 260 m2 | novostavba
830 000 €
  • MHD

O nehnuteľnosti

Okres: Bratislava IV
Lokalita: Bratislava-Záhorská Bystrica
Celková výmera: 260 m2
Typ: Rodinný dom
Stav: novostavba
Druh: Predaj
Cena: 830 000 €

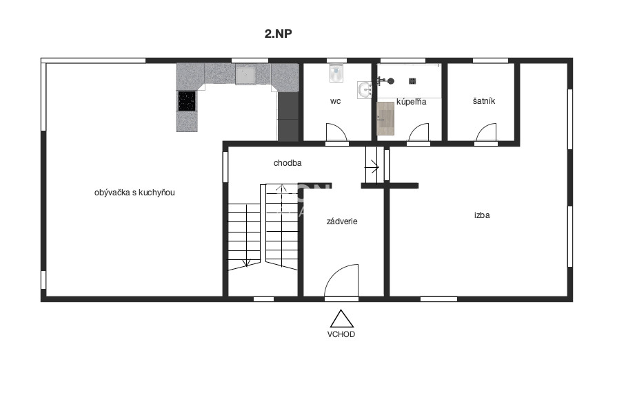
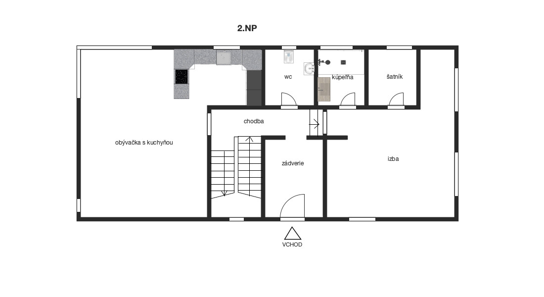
Popis nehnuteľnosti

Ponúkame na predaj samostatne stojaci RD v obci Bratislava - Záhorská Bystrica časť Orešianky:

- 5 izbový RD s obytnou plochou 160m2 + garáž 46m2 + terasa na 2 podlaží 55m2 + pozemok 535m2 - HOLODOM - 830 000 eur
- 4 izbový RD s obytnou plochou 160m2 + garáž 46m2 + terasa na 2 podlaží 55m2 + pozemok 593m2 - HOLODOM - 850 000 eur

Rodinný dom je postavený z:
- tehla obvodová 30cm, nosné steny 25cm, priečky 11,5cm
- 1 NP monolitický liaty betón
- zateplenie 20cm polystén
- okná hlinníkové aj plastové 3 sklo, 5 komorové U=0,5
- strecha železobetónové monolitická, spádový polystrén hrúbky 25-30cm, Fatrafol
- sádrové omietky
- zásuvky, vypínače
- predné a zadné ploty liaty monolitický železobeton

Ostatné prvky:
- príprava na inteligentný dom
- príprava na klimatizáciu v každej izbe
- príprava na alarm, kamery
- tepelná čerpadlo zn. Elko
- 380V v garáži pre nabíjanie lektromobilu
- kabeláže okolo domu ( vpredu, vzadu )
- príprava na závlahu


Z domu je nádherný výhľad, nakoľko sa nachádza v hornej časti Orešianky.

Uvedená cena je za prevedienie HOLODOM. Interiér je možné dokončiť po dohode, ako na fokách, alebo individuálne na prianie klienta.

Doplňujúce informácie

Status:
aktívne
Vlastníctvo:
osobné
Stav:
novostavba
Úžitková plocha:
260 m2
Plocha pozemku:
535 m2
Zastavaná plocha:
115 m2
Počet podlaží:
3
Počet izieb:
5
Balkón:
nie
Počet kúpeľní:
2
Energetický certifikát:
A
El. napätie:
230/400V
Kanalizácia:
áno
Materiál:
tehla
Zateplený objekt:
nie
Terasa:
nie

Informatívna úverová kalkulačka

IDEÁLNE
MIESTO
NA ŽIVOT

Zaujala Vás naša ponuka? Radi Vám povieme viac

Podobné nehnuteľnosti, ktoré by Vás mohli zaujímať