Používame cookies

Súbory cookie a ďalšie technológie sledovania používame na zlepšenie vášho zážitku z prehliadania našich webových stránok, na to, aby sme vám zobrazovali prispôsobený obsah a cielené reklamy, na analýzu návštevnosti našich webových stránok a na pochopenie toho, odkiaľ naši návštevníci prichádzajú.  Viac info

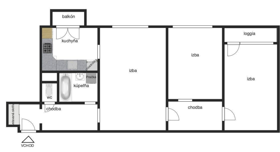
Veľký 3i byt s lodžiou a balkónom s výhľadom v Ružinove – Exnárova ul.

3-izbový byt | 70.39 m2 | pôvodný
Exnárova, Bratislava-Ružinov
248 999 €
  • Slnečný
  • Pekný výhľad
  • Obchody
  • MHD
  • Škola, škôlka

O nehnuteľnosti

Ulica: Exnárova
Okres: Bratislava II
Lokalita: Bratislava-Ružinov
Celková výmera: 70.39 m2
Typ: 3-izbový byt
Stav: pôvodný
Druh: Predaj
Cena: 248 999 €

Popis nehnuteľnosti

Ponúkame na predaj veľký 3izbový byt s lodžiou a balkónom vo výbornej lokalite Ružinova – ul Exnárova.
Nehnuteľnosť sa nachádza na 6NP v 7 podlažnom bytovom dome s výťahom.

Rozloha bytu je 78,38m2.

Byt ma výbornú polohu na bývanie a krásny výhľad na mesto, TREBA VIDIEŤ.

Byt prešiel rekonštrukciou, vymenené nové okná, brizolitové omietky, 2x klimatizácia, dlažba.
K bytu prislúcha aj pivnica v suteréne bytového domu.

Bytový dom je taktiež po rekonštrukcii, nová strecha, zateplenie, nová fasáda, výťah a brány.
Exnárovej ulica ponúka skvelú polohu v blízkosti kompletná občianska vybavenosť a MHD.

Cena 248.999€ možný aj HÚ.

Doplňujúce informácie

Status:
aktívne
Vlastníctvo:
osobné
Stav:
pôvodný
Úžitková plocha:
70.39 m2
Poschodie:
6
Loggia:
áno
Počet podlaží:
7
Balkón:
áno
Výťah:
áno
Terasa:
nie
Vykurovanie:
spoločné

Informatívna úverová kalkulačka

IDEÁLNE
MIESTO
NA ŽIVOT

Zaujala Vás naša ponuka? Radi Vám povieme viac

Podobné nehnuteľnosti, ktoré by Vás mohli zaujímať