Používame cookies

Súbory cookie a ďalšie technológie sledovania používame na zlepšenie vášho zážitku z prehliadania našich webových stránok, na to, aby sme vám zobrazovali prispôsobený obsah a cielené reklamy, na analýzu návštevnosti našich webových stránok a na pochopenie toho, odkiaľ naši návštevníci prichádzajú.  Viac info

Pripravujem do ponuky: 3-izbový byt, Rača, Plickova

3-izbový byt | 73.5 m2 | pôvodný
Plickova, Bratislava-Rača
215 000 €
  • Obchody
  • MHD
  • Škola, škôlka

O nehnuteľnosti

Ulica: Plickova
Okres: Bratislava III
Lokalita: Bratislava-Rača
Celková výmera: 73.5 m2
Typ: 3-izbový byt
Stav: pôvodný
Druh: Predaj
Cena: 215 000 €

Popis nehnuteľnosti

Realitná kancelária BOND Reality ponúka na predaj 3-izbový byt v Rači na Plickovej ulici.
BYT
- 3-izbový
- 8/12 poschodie
- úžitková plocha byt 66,5m2 + loggia 7m2
- pôvodný stav

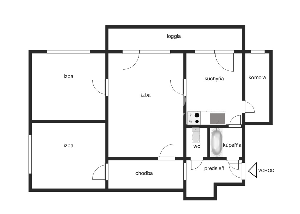
Dispozícia:
- tri izby, kuchyňa, komora, chodba, kúpeľňa a samostatné wc.
- orientovaný na dve svetové strany


Vo fotodokumentácii je priložený pôdorys.

BYTOVÝ DOM
- 12 poschodí
- výťah 2x
- 4 byty na poschodí
- panelová stavba
- kompletná rekonštrukcia

OKOLIE:
Vyhľadávaná časť Rače s množstvom zelene. K dispozícii mnoho možností pre aktívny život, prechádzky krásnymi Malými Karpatami s výhľadom na vinice, jazda na bicykli na miestnych cyklotrasách, alebo športové vyžitie. - kompletná občianska vybavenosť - škola, škôlka, banky, obchody, MHD, športoviská, pošta - do centra mesta sa dostanete rýchlo a jednoducho – do 10 minút autom, do 20 minút električkou aj na bicykli, autom sa pohodlne a rýchlo dostanete na diaľničný obchvat

Text a fotografie sú autorským dielom a majetkom realitnej kancelárie BOND Reality.

Doplňujúce informácie

Status:
aktívne
Stav:
pôvodný
Úžitková plocha:
73.5 m2
Poschodie:
9
Loggia:
áno
Počet podlaží:
13
Balkón:
nie
Terasa:
nie
Vykurovanie:
spoločné

Informatívna úverová kalkulačka

IDEÁLNE
MIESTO
NA ŽIVOT

Zaujala Vás naša ponuka? Radi Vám povieme viac

Podobné nehnuteľnosti, ktoré by Vás mohli zaujímať